New Inn Lane, Stoke-On-Trent, ST4
£420,000 Freehold
(Sold Subject To Contract)
4
2
1
Key Features:
- Large Three bedroom Detached Bungalow
- Parking, Detached garage
- Gardens to Front & Rear
- Central Heated, Double Glazed
- EPC being Renewed, Council Tax D
- Ask an adviser to book your viewing
Summary:
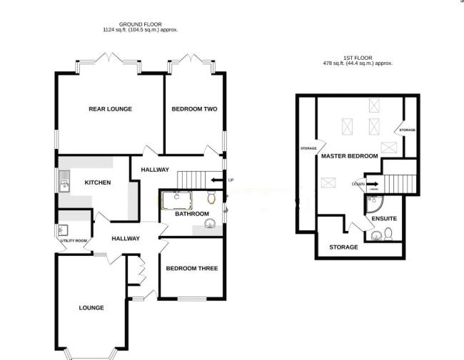
A large detached four bedroom bungalow situated in the popular suburb of Trentham. This large detached property benefits from gas central heating and double glazing, extensive grounds and modern kitchen and bathrooms. Accommodation comprises entrance hallway, bedroom/dining room, study/bedroom, utility room, kitchen, living room, Bedroom at ground floor level with a large bedroom and ensuite bathroom to the first floor. To the frontage is a low maintenance well maintained garden and off-road parking. At the rear is a large lawn patio seating area and double garage.
Full Details:
Ground Floor
Hallway
With wooden floor, radiators, Power Point, built-in cupboard, stairs off.
Dining Room/ Bedroom 1 10' 11'' x 10' 8'' (3.33m x 3.24m)
With carpeted floor, radiator, power points. Former owners used as a bedroom.
Study 17' 6'' x 11' 5'' (5.33m x 3.47m)
With carpeted floor, radiator, Power Point, aerial point, feature hearth with inset fire. Ornate window onto hallway.
Utility room 6' 0'' x 7' 7'' (1.82m x 2.32m)
With wood effect wall units, marble effect surface. Belfast style sink, washer and Power Point, door to side.
Kitchen 11' 3'' x 12' 3'' (3.43m x 3.73m)
Modern fitted kitchen with white wall and base units marble effect surfaces over. Fully tiled floor. Includes double sink, Power Point, cooker point, radiator.
Bathroom 11' 3'' x 7' 9'' (3.43m x 2.35m)
Modern fitted bathroom suite in white with basin set in vanity unit, WC, large enclosed shower cubicle with combination shower. Fully tiled walls and tile effect floor. Includes heated chrome to radiator, extractor fan.
Living Room 17' 6'' x 15' 9'' (5.33m x 4.80m)
With carpeted floor, radiator, Power Point, patio doors onto rear.
Bedroom 2 10' 4'' x 15' 9'' (3.16m x 4.79m)
With carpeted floor, radiator, Power Point, patio door onto rear. Inset spotlights.
First Floor
Landing
With carpeted floor.
Bedroom 3 14' 1'' x 22' 0'' (4.28m x 6.71m)
With carpeted floor, vellux windows to side and rear, inset spotlights, radiator, Power Point, eaves storage, walk-in wardrobe. Ensuite bathroom off.
En-suite 7' 3'' x 8' 10'' (2.20m x 2.69m)
Modern fitted bathroom suite in white with basin set in vanity unit, WC, enclosed shower cubicle with combination shower. Part tiled walls and tile effect floor. Includes heated chrome towel radiator, extractor fan.
Outside
To the frontage is a low maintenance garden and paved driveway suitable for parking three cars leading to a side drive onto a double garage. At the rear are extensive lawns and a patio seating area.
Energy Performance Certificate
Click here to view the Energy Efficiency Rating and Environmental Impact Rating for this property.
Viewing & Disclaimer:
Please contact us on 01782 847083 / 01538 753177 if you wish to arrange a viewing appointment for this property, or require further information.
Keates - STK1 endeavour to maintain accurate depictions of properties in Virtual Tours, Floor Plans and descriptions, however, these are intended only as a guide and purchasers must satisfy themselves by personal inspection.

