Birches Head Road, Stoke-On-Trent, ST1
£295,000 Freehold
3
1
2
Key Features:
- Fully Modernised Three Bed Semi
- Garage, Parking, Garden, Sun House
- Large Kitchen and Modern Bathroom
- Large Plot
- EPC Band D Rating 65 Council Tax C
- Ask an adviser to book your viewing
Summary:
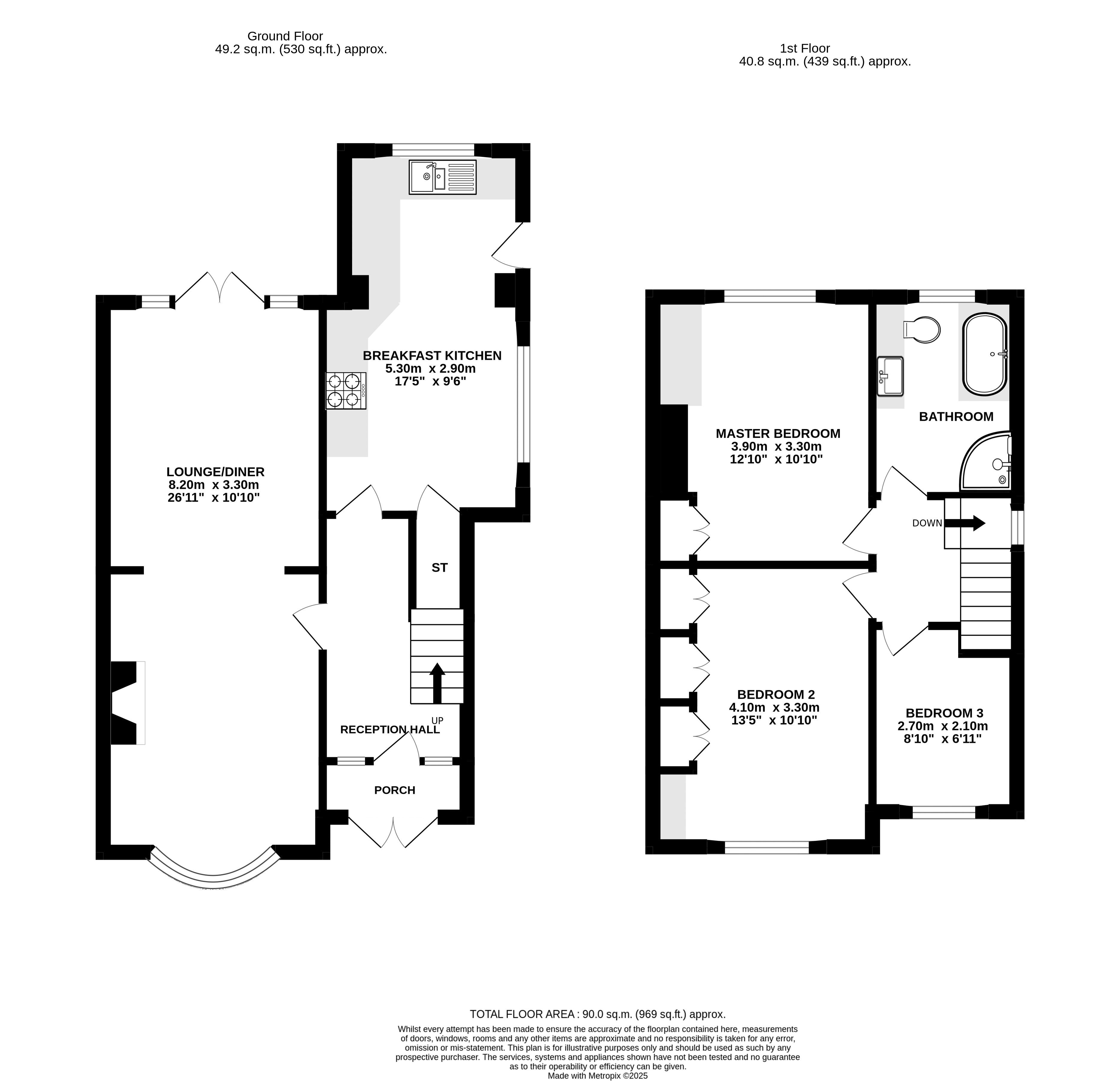
A fully modernised semi-detached property situated on a larger than average plot. This property benefits from a modern kitchen and bathroom, gas central heating, double glazing, ample off-road parking, garage and Sun house. The property comprises entrance hall, living room, dining room and kitchen at ground floor level with three bedrooms and a family bathroom to the first floor. To the frontage is a block paved driveway suitable for parking five or six vehicles and a lawn garden with mature shrubs. At the rear is a blocked garden leading to a summer house and single detached garage.
Full Details:
Ground Floor
Entrance Porch
With tiled floor. PVCU door to front.
Hallway
Fully tiled floor, radiator, Power Point, stairs off.
Living Room 17' 2'' x 10' 7'' (5.22m x 3.23m)
With tiled floor and underfloor heating, Power Point, aerial point, feature hearth with inset fire.
Dining Room 13' 11'' x 10' 7'' (4.24m x 3.23m)
With tiled floor incorporating underfloor heating, radiator, Power Point, patio doors onto rear.
Kitchen/Diner 17' 7'' x 9' 9'' (5.37m x 2.96m)
Modern fitted kitchen with cream wall and base units wood effect surfaces over. Tile effect walls and fully tiled floor including underfloor heating, Power Point, Built-in cupboard. Appliances include integrated range style cooker oven and hob, slimline dishwasher, microwave and fridge freezer.
First Floor
Landing
With carpeted floor, window to side, stairs off.
Bedroom 1 10' 11'' x 13' 10'' (3.33m x 4.21m)
With carpeted floor, radiator, Power Point, front aspect window and built-in wardrobes.
Bedroom 2 9' 9'' x 6' 11'' (2.96m x 2.11m)
With carpeted floor, radiator, Power Point.
Bedroom 3 12' 10'' x 10' 8'' (3.92m x 3.25m)
With carpeted floor, radiator, Power Point, built-in bedroom furniture.
Bathroom 10' 1'' x 67' 7'' (3.07m x 20.6m)
Modern fitted bathroom suite in white with basin and WC set into vanity unit, Panel bath, enclosed shower cubicle with combination shower. Marble effect walls and tiled floor. Includes heated chrome towel radiator, extractor fan.
Outside
To the frontage is a large block paved driveway suitable for parking up to 6 cars leading to a single brick built garage at the rear with electrical power and lighting. Additionally at the front there is a lawn garden with mature Boards. At the rear is a block paved garden leading to a brick built summer house with electrical power and lighting.
Energy Performance Certificate
Click here to view the Energy Efficiency Rating and Environmental Impact Rating for this property.
Viewing & Disclaimer:
Please contact us on 01782 847083 / 01538 753177 if you wish to arrange a viewing appointment for this property, or require further information.
Keates - STK1 endeavour to maintain accurate depictions of properties in Virtual Tours, Floor Plans and descriptions, however, these are intended only as a guide and purchasers must satisfy themselves by personal inspection.

