Sandy Lane, Stafford, ST21
£575,000 Freehold
3
2
2
Key Features:
- Large Detached Bungalow with views onto fields
- Ground Source Heated, Solar Panels
- Parking, Gardens & Double Garage
- Three Bedrooms, two bathrooms
- EPC band C Rating 71, Council Tax D
- Ask an adviser to book your viewing
Summary:
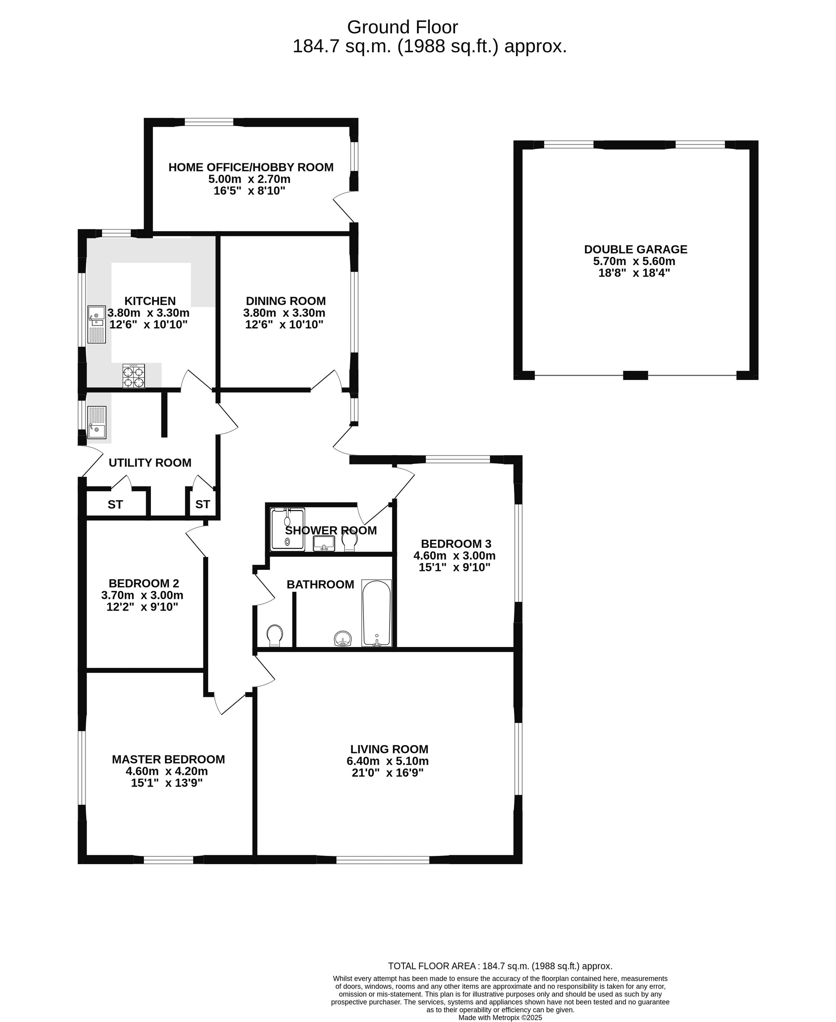
A superior three bed detached property with views onto open fields which is situated on a large plot accessed from a long driveway. Located in the quiet rural village of cranberry this detached bungalow benefits from ground source central heating, owned solar panels and double glazing. Accommodation comprises entrance hall, dining room, kitchen, utility, two bathrooms, three bedrooms and living room. To the frontage is long tarmac driveway leading to an ample parking area with detached double garage and GYM/office. At the rear is a lawn garden with patio seating area and sun house.
Full Details:
Accommodation
Hallway
With parquet floor, radiator, Power Point.
Dining Room 10' 11'' x 12' 10'' (3.33m x 3.91m)
With tiled floor, radiator, power point, blinds, serving hatch.
Kitchen 10' 10'' x 12' 10'' (3.31m x 3.90m)
Fitted kitchen with pale wood wall and base units granite effect surfaces over. Part tiled walls and tiled floor. Includes integrated cooker hob and extractor hood, Power Point. Views onto open fields.
Utility room 10' 10'' x 10' 1'' (3.31m x 3.08m)
Fitted wall and base units in pale wood with granite effect surface. Part tiled walls and tiled floor. Includes Washer point, Power Point, ground source heat pump, , door to rear and built-in cupboards.
Bedroom 1 11' 10'' x 15' 4'' (3.6m x 4.67m)
With carpeted floor, radiator, Power Point. Dual aspect windows.
Bathroom 7' 9'' x 4' 5'' (2.37m x 1.35m)
Modern fitted bathroom suite in white with WC, basin set in vanity unit, enclosed shower cubicle with combination shower. Part tiled walls and laminate floor. Includes a radiator and extractor fan.
Inner Hall
With carpeted floor and radiator.
Bedroom 2 10' 11'' x 11' 11'' (3.32m x 3.62m)
With carpeted floor, radiator, Power Point, views onto open fields.
Family Bathroom 11' 4'' x 7' 7'' (3.46m x 2.31m)
Modern fitted bathroom suite in white with WC, pedestal basin, panel bath. Part tiled walls and vinyl floor. Includes heated towel radiator, inset spotlights, extractor fans.
Bedroom 3 8' 11'' x 14' 1'' (2.72m x 4.29m)
With carpeted floor, radiator, Power Point, dual aspect windows.
Living Room 21' 4'' x 14' 10'' (6.51m x 4.52m)
With carpeted floor, radiator, Power Point, wall lights, dual aspect windows.
Office 18' 10'' x 8' 10'' (5.73m x 2.70m)
With concrete floor, radiator, Power Point, window to side. Currently only accessed from the exterior but subject to appropriate building work could be incorporated into the building. May suit use as a small gym.
Outside
Externally there is a long tarmac driveway leading to an ample parking area with a detached double garage. At the rear is a lawn garden with patio seating area and sun house.
Garage 18' 10'' x 19' 11'' (5.73m x 6.07m)
With concrete floor, up and over doors, electrical power and lighting.
Energy Performance Certificate
Click here to view the Energy Efficiency Rating and Environmental Impact Rating for this property.
Viewing & Disclaimer:
Please contact us on 01782 847083 / 01538 753177 if you wish to arrange a viewing appointment for this property, or require further information.
Keates - STK1 endeavour to maintain accurate depictions of properties in Virtual Tours, Floor Plans and descriptions, however, these are intended only as a guide and purchasers must satisfy themselves by personal inspection.

